Skövde

Kunskapsvägen 8

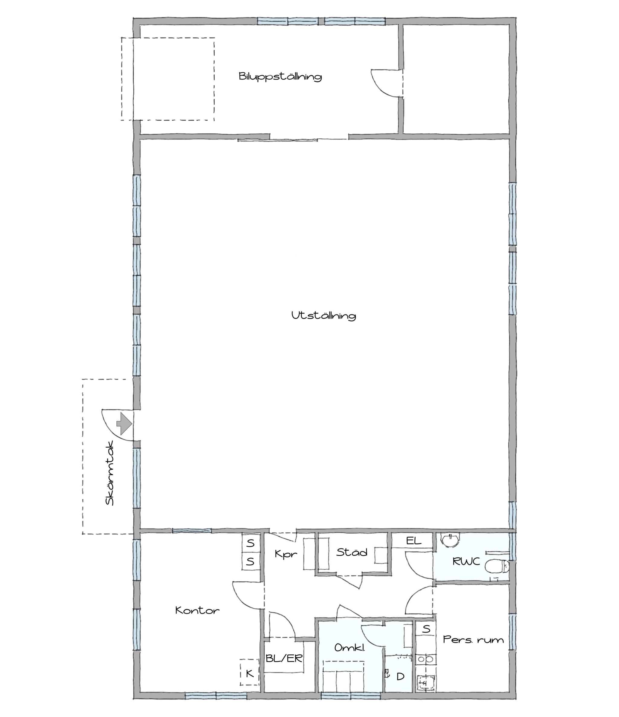
Nu finns möjlighet att förvärva en friliggande och välskött fastighet i Stöpen med flera tänkbara användningsområden. Byggnaden är uppförd 1992 och omfattar cirka 209 kvm med lokaldel om cirka 112 kvm samt garage, kontorsdel, omklädningsrum, dusch, toalett och pentry.

Fastigheten erbjuder bra uppställningsytor, fjärrvärme, god isolering och låga driftskostnader. För den som vill undersöka andra möjligheter kan fastigheten även vara intressant som ett möjligt omställningsprojekt till villa, förutsatt att bygglov och övriga tillstånd beviljas. Läget är bra i ett etablerat område med närhet till bland annat skola.

Snabbfakta

Typ Friliggande villa
Boarea 209 kvm
Tomtarea 968 kvm
Byggår 1992
Mer fakta
Utgångspris
2 245 000 kr

Visning

Kontakta mäklare för bokning av visning.
Ansvarig mäklare

Daniel Widmark

Fastighetsmäklare
0500-480270 daniel@forsbergshuset.se

Byggnad/Tomt

Byggnaden har ett välskött och funktionellt yttre med garage, tydlig entré och god tillgänglighet. Den plana tomten erbjuder bra parkerings- och uppställningsytor på framsidan med mycket hårdgjorda ytor, samt gräsytor runt byggnaden som ger en lättskött och luftig helhet.

Byggnad/Tomt
Byggnad/Tomt Byggnad/Tomt Byggnad/Tomt Byggnad/Tomt Byggnad/Tomt Byggnad/Tomt Byggnad/Tomt Byggnad/Tomt Byggnad/Tomt Byggnad/Tomt Byggnad/Tomt

Butikslokal/Garage

Butikslokalen är om ca 112 kvm med generösa öppna ytor som lämpar sig väl för butik, utställning, eller annan verksamhet. Garage med automatport samt verkstadsdel innanför ger en praktisk helhet med flera användningsmöjligheter.

Butikslokal/Garage
Butikslokal/Garage Butikslokal/Garage Butikslokal/Garage Butikslokal/Garage Butikslokal/Garage Butikslokal/Garage Butikslokal/Garage Butikslokal/Garage

Kontorsdel

I anslutning till lokalen finns en kontorsdel med kontor, pentry, toalett samt omklädningsrum med dusch. En bra lösning för dig som söker både arbetsytor och personalutrymmen inom samma byggnad.

Kontorsdel
Kontorsdel Kontorsdel Kontorsdel Kontorsdel Kontorsdel Kontorsdel Kontorsdel Kontorsdel Kontorsdel Kontorsdel Kontorsdel

Inspirationsbilder

Inspirationsbilder

Planritning

Fakta

Bostaden

Boarea
209 kvm
Upplåtelseform
Friköpt
Bostadstyp
Friliggande villa
Bredband
Fiber finns indraget

Byggnad

Byggnadstyp
1-plansvilla
Byggnadsår
1992
Fast.beteckning
Frösve 3:16
Ventilation
Mekanisk (FTX i kontorsdel)
Vatten/avlopp
Kommunalt vatten och avlopp
Uppvärmning
Fjärrvärme med konvektor samt direkt el
Byggnadssätt
Fasad
Trä
Stomme
Trä
Fönster
3-glas
Plåtarbete
Lackerad plåt
Tak
Betongpannor
Grund
Betongplatta

Tomt

Area
968 kvm

Ekonomi

Tillgångar
Typkod
Markvärde
0 kr
Summa taxeringsvärde
0 kr (fastställt avseende år )

Karta