Skövde

Kunskapsvägen 8

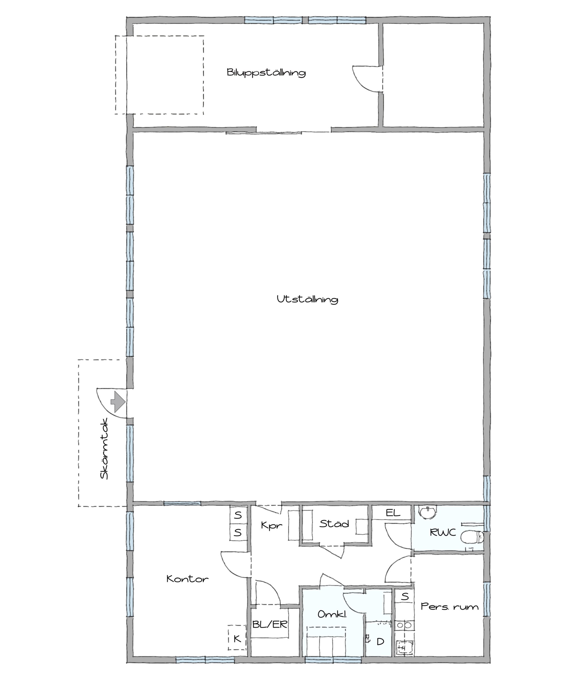
Nu finns möjlighet att förvärva en friliggande och välskött fastighet i Stöpen med goda ytor för verksamhet och ett upplägg som passar många olika behov. Byggnaden är uppförd 1992 och omfattar cirka 209 kvm med en butikslokal om cirka 112 kvm samt garage, kontorsdel med kontor, omklädningsrum, dusch, toalett och pentry.

Fastigheten erbjuder även garage samt bra uppställningsytor utanför byggnaden, vilket skapar god funktion i vardagen för såväl personal som kunder och leveranser. Byggnaden är ansluten till fjärrvärme, välisolerad och har låga driftskostnader.

För dig som söker en egen fastighet med flexibilitet, bra grundförutsättningar och ett lättillgängligt läge i Stöpen är detta ett bra tillfälle.

Snabbfakta

Typ Hyresfastighet
Tomtarea 968 kvm
Driftkostnad 34 971 kr/år
Mer fakta
Utgångspris
2 245 000 kr

Visning

Kontakta mäklare för bokning av visning.
Ansvarig mäklare

Daniel Widmark

Fastighetsmäklare
0500-480270 daniel@forsbergshuset.se

Byggnad/Tomt

Byggnaden har ett välskött och funktionellt yttre med garage, tydlig entré och god tillgänglighet. Den plana tomten erbjuder bra parkerings- och uppställningsytor på framsidan med mycket hårdgjorda ytor, samt gräsytor runt byggnaden som ger en lättskött och luftig helhet.

Byggår
1992
Antal våningar
1
Energideklaration
Status
Ej genomförd
Byggnaden
Boarea
209 m²
Grund
Betongplatta
Stomme
Trä
Fasad
Trä
Tak
Betongpannor
Utv plåtarbete
Lackerad plåt
Fönster
3-glas
Ventilation
Mekanisk, FTX kontorsdelen
Vatten/avlopp
Kommunalt vatten och avlopp
Uppvärmning
Fjärrvärme med konvektor samt direkt el,
Byggnad/Tomt
Byggnad/Tomt Byggnad/Tomt Byggnad/Tomt Byggnad/Tomt Byggnad/Tomt Byggnad/Tomt Byggnad/Tomt Byggnad/Tomt Byggnad/Tomt Byggnad/Tomt Byggnad/Tomt

Butikslokal/Garage

Butikslokalen är om ca 112 kvm med generösa öppna ytor som lämpar sig väl för butik, utställning, eller annan verksamhet. Garage med automatport samt verkstadsdel innanför ger en praktisk helhet med flera användningsmöjligheter.

Butikslokal/Garage
Butikslokal/Garage Butikslokal/Garage Butikslokal/Garage Butikslokal/Garage Butikslokal/Garage Butikslokal/Garage Butikslokal/Garage Butikslokal/Garage

Kontorsdel

I anslutning till lokalen finns en kontorsdel med kontor, pentry, toalett samt omklädningsrum med dusch. En bra lösning för dig som söker både arbetsytor och personalutrymmen inom samma byggnad.

Kontorsdel
Kontorsdel Kontorsdel Kontorsdel Kontorsdel Kontorsdel Kontorsdel Kontorsdel Kontorsdel Kontorsdel Kontorsdel Kontorsdel

Inspirationsbilder

Det finns också potential för dig som vill titta vidare på möjligheten att omvandla fastigheten till villa. Läget är bra med närhet till skola och ett etablerat bostadsområde, men bygglov behöver sökas för ändrad användning.

Inspirationsbilder

Planritning

Fakta

Byggnad

Bostadstyp
Hyresfastighet
Kommun
Skövde
Gatuadress
Kunskapsvägen 8
Kommunalskatt
33,382%
Postnummer
549 70
Stad
Skövde
Område
Stöpen
Fast.beteckning
Frösve 3:16

Tomt

Area
968 kvm

Ekonomi

Driftkostnader
Uppvärmning
10 466 kr
Försäkring
5 000 kr
Vatten/avlopp
12 169 kr
El
7 336 kr
Summa
34 971 kr
Taxeringsvärde
Typkod
325
Taxeringsår
2025
Hyreshusmark för lokaler
78 000 kr
Hyreshusbyggnad för lokaler
378 000 kr (1992)
Summa
456 000 kr

Karta