Skara

Blåbärsstigen 20

I lugnt och barnvänligt område strax utanför Skara ligger denna välplanerade villa med dubbelgarage och lättskött tomt med uteplatser i flera väderstreck. Bostaden erbjuder generösa sällskapsytor, renoverat kök, två badrum och fem sovrum med plats för hela familjen. Här bor du med närhet till grönområden, skola och smidiga förbindelser.

Snabbfakta

Typ Friliggande villa
Rum 7 rok
Boarea 175 kvm
Tomtarea 960 kvm
Byggår 1974
Mer fakta
Utgångspris
1 790 000 kr

Visning

15 Maj
Kontakta mäklaren för enskild tidsbokad visning
Ansvarig mäklare

Daniel Widmark

Fastighetsmäklare
0500-480270 daniel@forsbergshuset.se

Fastigheten

Beläget i Ardala, strax utanför Skara, i ett lugnt och barnvänligt villaområde med grönområden precis inpå knuten ligger denna välskötta villa.
Bostadshuset är en friliggande 1½-plansvilla med tillbyggt dubbelgarage och förrådsdel. Tomten är generös och lättskött med plana gräsytor, insynsskyddad baksida och två uteplatser – en på framsidan och en på baksidan.
Uppfarten är asfalterad med plats för flera bilar, och i direkt anslutning till huset finns deubbelgaraget med separat ingång mot trädgårdssidan.

Fastigheten
Fastigheten Fastigheten Fastigheten Fastigheten Fastigheten Fastigheten Fastigheten Fastigheten Fastigheten Fastigheten Fastigheten Fastigheten

Hall

Entréplanet välkomnar med en rymlig hall som erbjuder god plats för avhängning och förvaring. Härifrån leder trappan vidare upp till övre plan där en möblerbar hall ger utrymme för exempelvis arbetsplats, lekhörna eller läsdel. I anslutning till köket finns dessutom en praktisk groventré.

Hall
Hall Hall Hall Hall Hall Hall

Vardagsrum

Ljust och trivsamt vardagsrum med generösa fönsterpartier som släpper in gott om dagsljus och ger fin kontakt med trädgården. Här finns plats för både soffgrupp och matsalsmöbel, och rummets samlande punkt är den stilrena braskaminen som bidrar med värme och atmosfär under årets kallare månader. Golvet är belagt med parkett som löper vidare mot angränsande rum och skapar en enhetlig känsla.

Vardagsrum
Vardagsrum Vardagsrum Vardagsrum Vardagsrum Vardagsrum Vardagsrum Vardagsrum

Kök

Praktiskt och stilrent kök med gott om arbetsyta och förvaring. Inredningen går i mörka toner med ljus bänkskiva och vitt kakel i halvförband som skapar en fin kontrast. En naturlig samlingsplats i rummet är köksön med arbetsyta i massivt trä. Köket är utrustat med häll, fläkt, ugn, kyl och frys i fullhöjd. Här finns även plats för matbord vid fönstret med utsikt mot framsidan.

Kök
Kök Kök Kök Kök

Sovrum

Bostaden rymmer flera sovrum i varierande storlek, väl anpassade för både familj och gäster. De flesta rummen är belägna på övre plan och har ljusa ytskikt, snedtak som skapar karaktär samt goda förvaringsmöjligheter. Det största sovrummet har plats för dubbelsäng och möblering, medan övriga rum lämpar sig väl som barnrum, kontor eller gästrum.

Sovrum
Sovrum Sovrum Sovrum Sovrum Sovrum Sovrum

Badrum/Tvättstuga

På entréplanet finns ett helkaklat badrum med både badkar och dusch samt kombinerad tvättavdelning med tvättmaskin och torktumlare. Väggarna är klädda i vitt kakel och golvet i grå klinker. På övre plan finns ytterligare ett badrum med wc, tvättställ och bidé samt dusch. Sammantaget erbjuder bostaden praktiska lösningar för familjens vardag och goda förutsättningar för en trivsam tillvaro.

Badrum/Tvättstuga
Badrum/Tvättstuga Badrum/Tvättstuga Badrum/Tvättstuga Badrum/Tvättstuga

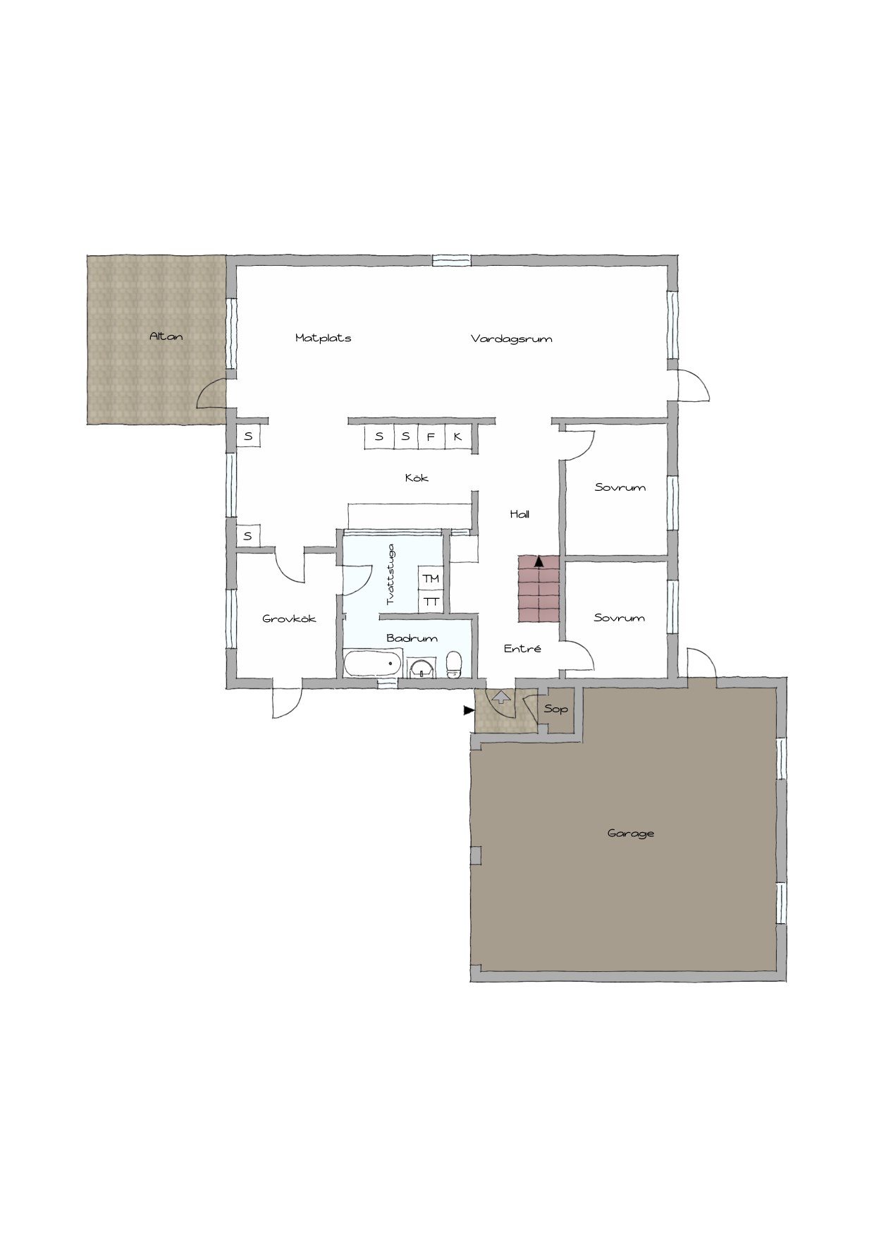
Planritning

Fakta

Bostaden

Boarea
175 kvm
Antal rum
7 rum & kök, varav 5 sovrum
Areakälla
taxeringsinformation
Upplåtelseform
Friköpt
Bostadstyp
Friliggande villa
Elförbrukning
11 632 kWh/år

Byggnad

Byggnadstyp
1½-plansvilla
Byggnadsår
1974
Fast.beteckning
Ardala 1:19
Ventilation
Självdrag
Vatten/avlopp
Kommunalt vatten året om. Kommunalt avlopp
Uppvärmning
Luft/luft-värmepump, Direkt el samt braskamin.
Byggnadssätt
Fasad
Trä
Stomme
Trä
Fönster
2-glas
Plåtarbete
Lackerad plåt
Tak
Betongpannor
Renovering
2014 - Takbyte
2018 - Kök renoveras
2021 - Efter vattensakada så renoverades större del av entréplan av försäkringsbolag.
2021 - Öppnar upp väggen mellan kök och vardagsrum.
2022 - Luft/luft värmepump installeras.
2022 - Braskamin installeras.

Tomt

Area
960 kvm

Ekonomi

Driftkostnader
Baserat på 4 st personer i hushållet.
Hushållsel
27 000 kr/år
Vatten/avlopp
7 513 kr/år
Renhållning
3 600 kr/år
Försäkring
7 704 kr/år
Summa
45 817 kr/år
Uppvärmning ingår i elkostnad
(fastighetsavgift/skatt på 10 395 kr tillkommer)
Tillgångar
Typkod
220, Småhusenhet, bebyggd
Byggnadsvärde
1 139 000 kr
Markvärde
247 000 kr
Summa taxeringsvärde
1 386 000 kr (fastställt avseende år 2024)

Energideklaration

Status
Genomförd (2017-12-03)
Prestanda
110 kWh/m2 och år
Energiklass
F

Karta