Tibro

Bjurslingan 11 Fagersanna

Med ett högt läge och fria vyer över sjön ligger denna sluttningsvilla från 1997 byggd med inspiration från Alperna. Stora terrasser i väster med hänförande utsikt och solnedgångar som imponerar.

Snabbfakta

Typ Friliggande villa
Rum 5 rok
Boarea 112 + 21 kvm
Tomtarea 799 kvm
Byggår 1997
Mer fakta
Utgångspris
3 145 000 kr

Visning

Kontakta mäklare för bokning av visning.
Ansvarig mäklare

Mats Forsberg

Fastighetsmäklare
0500-480280 mats@forsbergshuset.se

Hus/Tomt

Med en fantastisk utsikt över sjön ligger denna villa, byggd 1997 i trä med öppen planlösning och ryggåstak i hela övervåningen. En stor terrass i västerläge till stor del under det stora utskjutande taket där man kan njuta av solnedgångarna över Örlen till sena kvällen. Vidbyggd carport på framsidan av huset på den lättskötta tomten om 799 kvm.

Hus/Tomt Hus/Tomt Hus/Tomt Hus/Tomt Hus/Tomt Hus/Tomt Hus/Tomt Hus/Tomt Hus/Tomt

Terrass/Uteplats

På framsidan ligger ett terrassdäck i anslutning till entrén i komposit. Här har man morgonsol fram till efter lunch. Från vardagsrummet når man den stora generösa terrassen mot sjön som till stor del är överbyggd, del av denna terrassen är även inglasad med ett uterum. I markplan på västersidan ligger även en stensatt terrass även denna med fin utsikt över Örlen.

Terrass/Uteplats
Terrass/Uteplats Terrass/Uteplats Terrass/Uteplats Terrass/Uteplats Terrass/Uteplats Terrass/Uteplats Terrass/Uteplats Terrass/Uteplats Terrass/Uteplats

Entréplan

Välkommen in i hallen med ett litet kapprum, klädkammare och gäst wc. Vidare kommer man in i vardagsrum - matrum med ryggåstak som ger rummet volym och en härlig vy mot sjön samt utgång till den stora terrassen. I anslutning till vardagsrummet ligger köket med matplatsen som en del i vardagsrummet. Ett sovrum med snedtak med utgång till det inglasade uterummet finns även i detta plan.

Entréplan
Entréplan Entréplan Entréplan Entréplan Entréplan Entréplan Entréplan Entréplan Entréplan Entréplan Entréplan

Nedre plan

En trappa ned finns ett allrum med utgång till nedre terrassen samt 2 sovrum varav det ena har utgång till terrassen. Stort badrum samt tvättstuga/apparatrum där även husets värmepump är placerad. I anslutning till tvättstugan finns även ett litet källarutrymme som är lämpligt som mat/vinkällare. I sluttningsvåningen finns även ett förråd med ingång från utsidan.

Nedre plan
Nedre plan Nedre plan Nedre plan Nedre plan Nedre plan

Kök

Kök som är uppgraderat med nya luckor och maskiner 2015.

Kök
Kök Kök Kök Kök Kök

Badrum/WC

Gäst wc på övre plan är helkaklat med tvättställ och wc, golvvärme. Badrummet i sluttningsvåningen är helkaklat med hörnbadkar samt separat dusch, wc och tvättställ, golvvärme.

Badrum/WC
Badrum/WC Badrum/WC Badrum/WC

Badplats

Området har tillgång till en fin sandstrand nere vid sjön nedanför undergången till höger där man även har en liten småbåtshamn för områdets båtar.

Badplats
Badplats Badplats Badplats

Omgivning

Fagersanna vid Örlen är ett vackert beläget område med bra förbindelser såväl till Karlsborg och Tibro men även till Skövde. Här finns även en nybyggd skola som man tar sig smidigt till på den nyanlagda cykel o gångvägen på den gamla järnvägsbanken. I närområdet finns även servicebutik 24/7.

Omgivning
Omgivning Omgivning Omgivning Omgivning

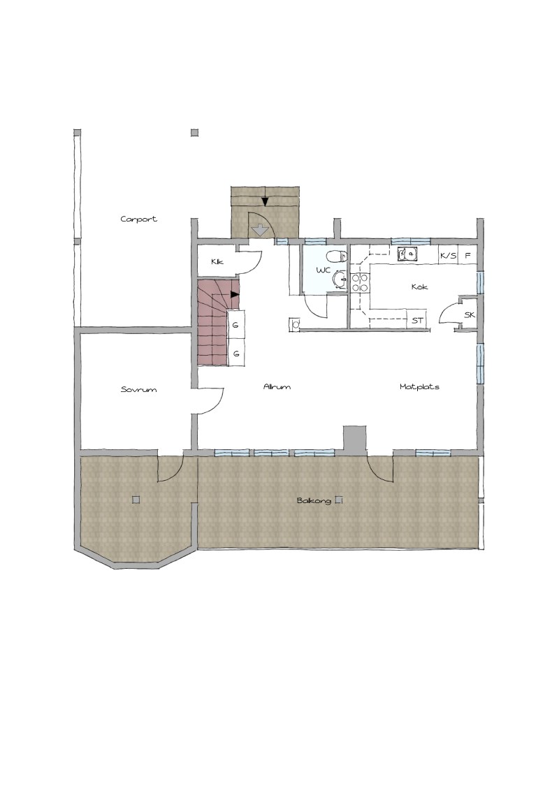
Planritning

Fakta

Bostaden

Boarea/biarea
112/21 kvm
Antal rum
5 rum & kök, varav 3 sovrum
Areakälla
taxeringsinformation
Upplåtelseform
Friköpt
Bostadstyp
Friliggande villa
Elleverantör
Tibro Energi
Elförbrukning
15 700 kWh/år
Bredband
Fiber

Byggnad

Byggnadstyp
1-plans souterrainvilla
Byggnadsår
1997
Fast.beteckning
Fagersanna 1:37
Ventilation
Mekanisk (endast frånluft)
Vatten/avlopp
Kommunalt vatten och avlopp Fiber finns indraget.
Uppvärmning
Vattenburen golvvärme med Värmepump (luft/vatten 2008) samt elpanna
Byggnadssätt
Fasad
Trä
Stomme
Trä
Fönster
3-glas
Bjälklag
Trä
Plåtarbete
Målad Plåt
Grundmur
Lättklink
Tak
Betongpannor
Grund
Betongplatta

Tomt

Area
799 kvm

Ekonomi

Driftkostnader
Baserat på 2 st personer i hushållet.
Hushållsel
29 000 kr/år
Vatten/avlopp
5 494 kr/år
Väg/samfällighetsavgift
1 000 kr/år
Renhållning
2 570 kr/år
Försäkring
4 677 kr/år
Summa
42 741 kr/år
(fastighetsavgift/skatt på 10 425 kr tillkommer)
Tillgångar
Typkod
220, Småhusenhet, bebyggd
Byggnadsvärde
1 313 000 kr
Markvärde
317 000 kr
Summa taxeringsvärde
1 630 000 kr (fastställt avseende år 2024)

Karta